
Applications for Consent and Minor Variance have been received from 1000857278 Ontario Inc. for the property at 18 Valley Road and will be heard by the Committee of Adjustment for the City of St. Catharines on November 12, 2025 @ 5pm.
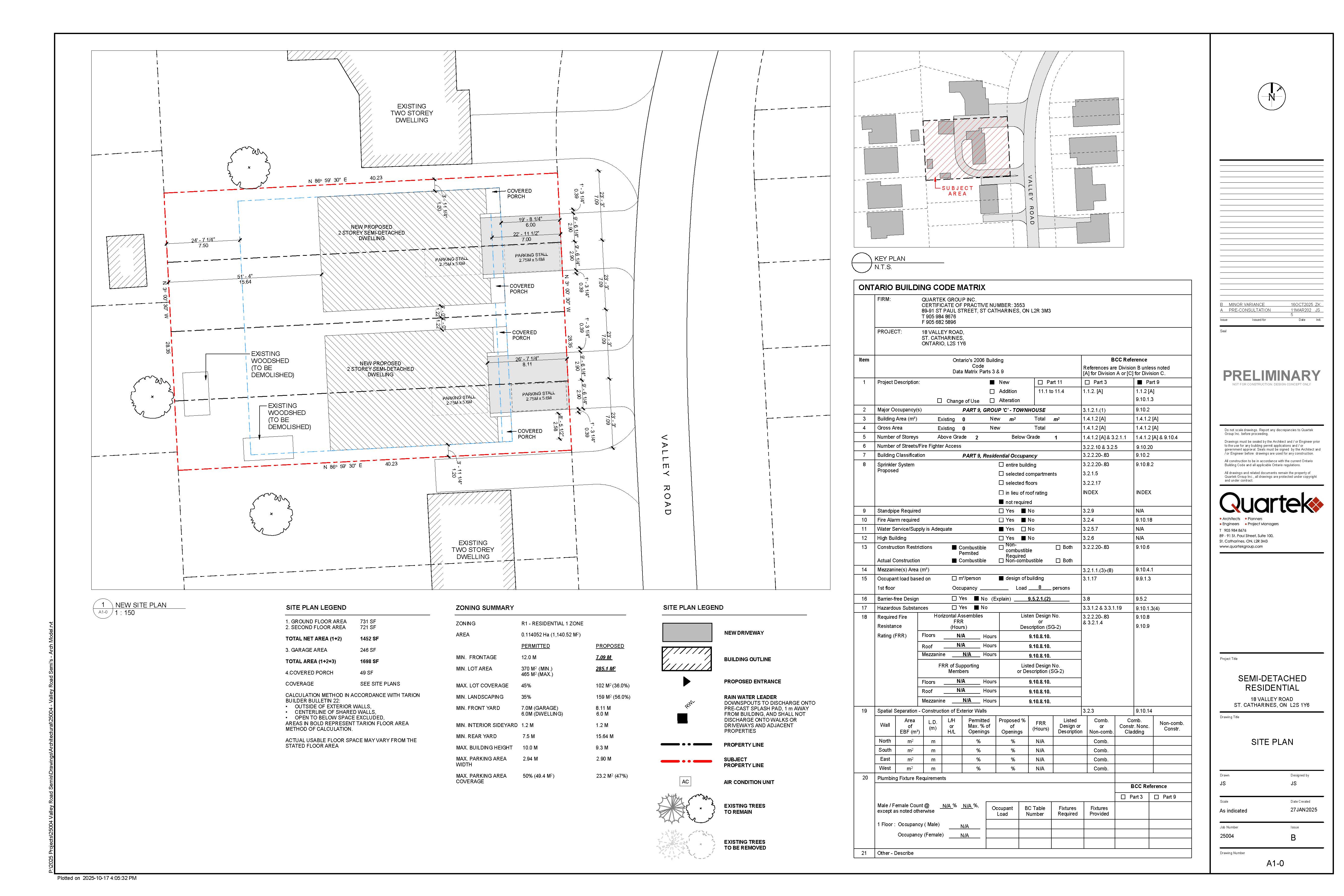
Application B-19/25SC is made for consent to sever 285.1 sq.m. (Part 1 on the submitted sketch) for the proposed construction of a semi-detached dwelling to be known as 18A Valley Road. The remnant parcel Part 2, Part 3 and Part 4 on the submitted sketch will be retained for further development. There are concurrent consent and minor variance applications B-20/25SC, B-21/25SC, A-54/25, A-55/25 A-56/25 and A-57/25.
Application B-20/25SC is made for consent to sever 285.1 sq. m. (Part 2 on the submitted sketch) for the proposed construction of a semi-detached dwelling to be known as 18B Valley Road. The remnant parcel Parts 3 and 4 to be retained for the proposed construction of a semi-detached dwelling.
Application B-21/25SC is made for consent to sever 285.1 sq. m. (Part 3 on the submitted sketch) for the proposed construction of a semi-detached dwelling to be known as 18C Valley Road. The remnant parcel is Part 4 to be retained for the proposed construction of a semi-detached dwelling to be known as 18D Valley Road.
Application A-54/25 seeks relief from the City of St. Catharines Zoning By-law 2013-283, as amended, for the following variances for a proposed semi-detached dwelling unit (Part 1):
Application A-55/25 seeks relief from the City of St. Catharines Zoning By-law 2013-283, as amended, for the following variances for a proposed semi-detached dwelling unit (Part 2):
Application A-56/25 seeks relief from the City of St. Catharines Zoning By-law 2013-283, as amended, for the following variances for a proposed semi-detached dwelling unit (Part 3):
Application A-57/25 seeks relief from the City of St. Catharines Zoning By-law 2013-283, as amended, for the following variances for a proposed semi-detached dwelling unit (Part 4):
If you have any questions, wish to submit comments, or request a copy of the Notice of Decision, please contact:
Elaine Munro, Secretary-Treasurer, Committee of Adjustment
City Hall, Box 3012, 50 Church Street, St. Catharines, ON L2R 7C2
905-688-5601, Ext. 1715 / cofa@stcatharines.ca
For more information on how to participate or make a submission via mail or email, please visit our Committee of Adjustment page.