
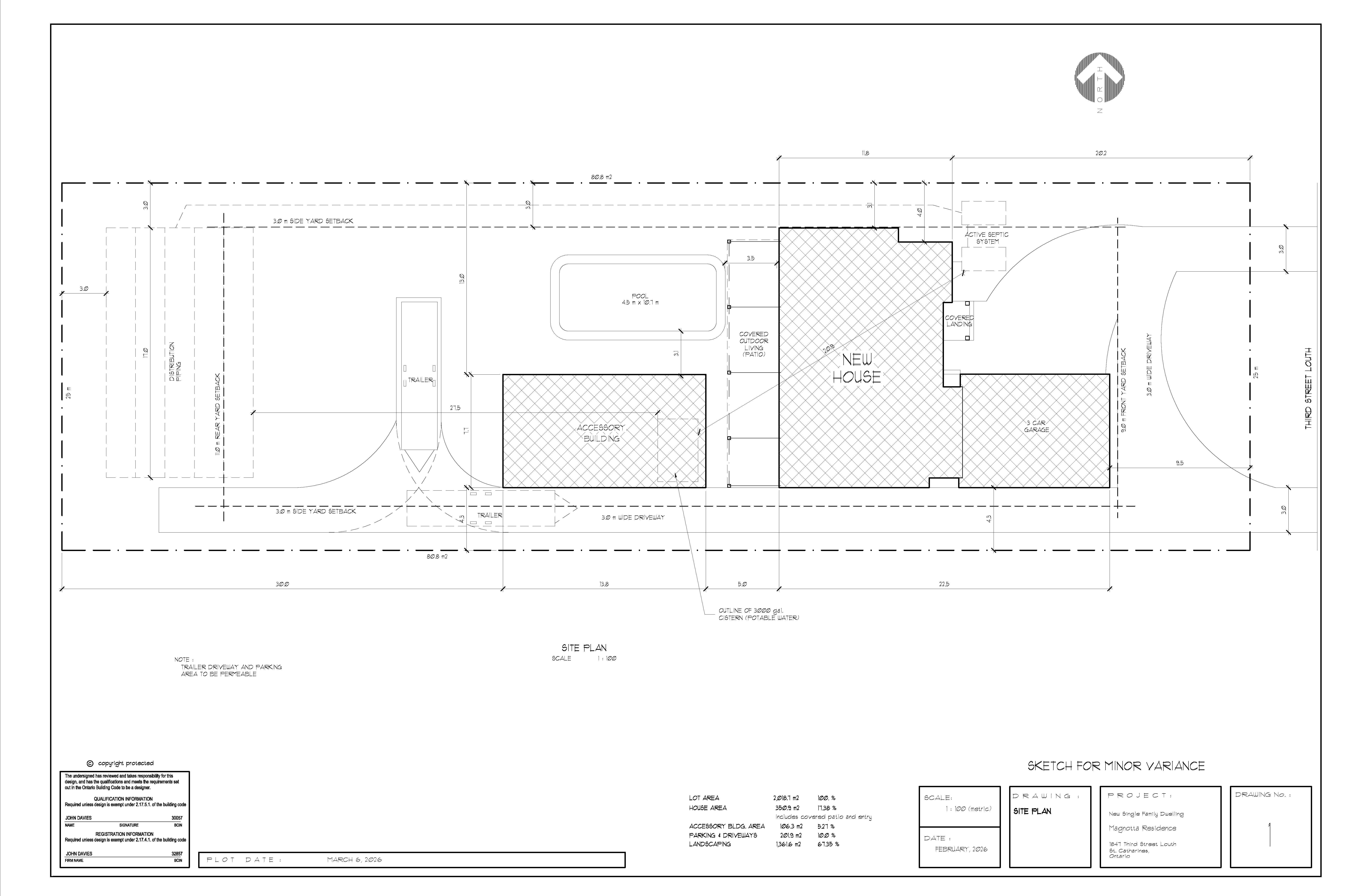
An applications for a Minor Variance has been received from David Magnotta & Sheena Magnotta for the property at 1847 Third Street Louth and will be heard by the Committee of Adjustment for the City of St. Catharines on April 15, 2026 at 5:00 p.m.
Application A-01/26 seeks relief from the City of St Catharines Zoning By-law 2013-283, as amended, for the following variance for a proposed detached dwelling:
If you have questions, wish to submit comments, or request a copy of the Notice of Decision, please contact:
Elaine Munro, Secretary-Treasurer, Committee of Adjustment
City Hall, P.O. Box 3012, 50 Church Street, St. Catharines, ON L2R 7C2
905-688-5601 x1715