
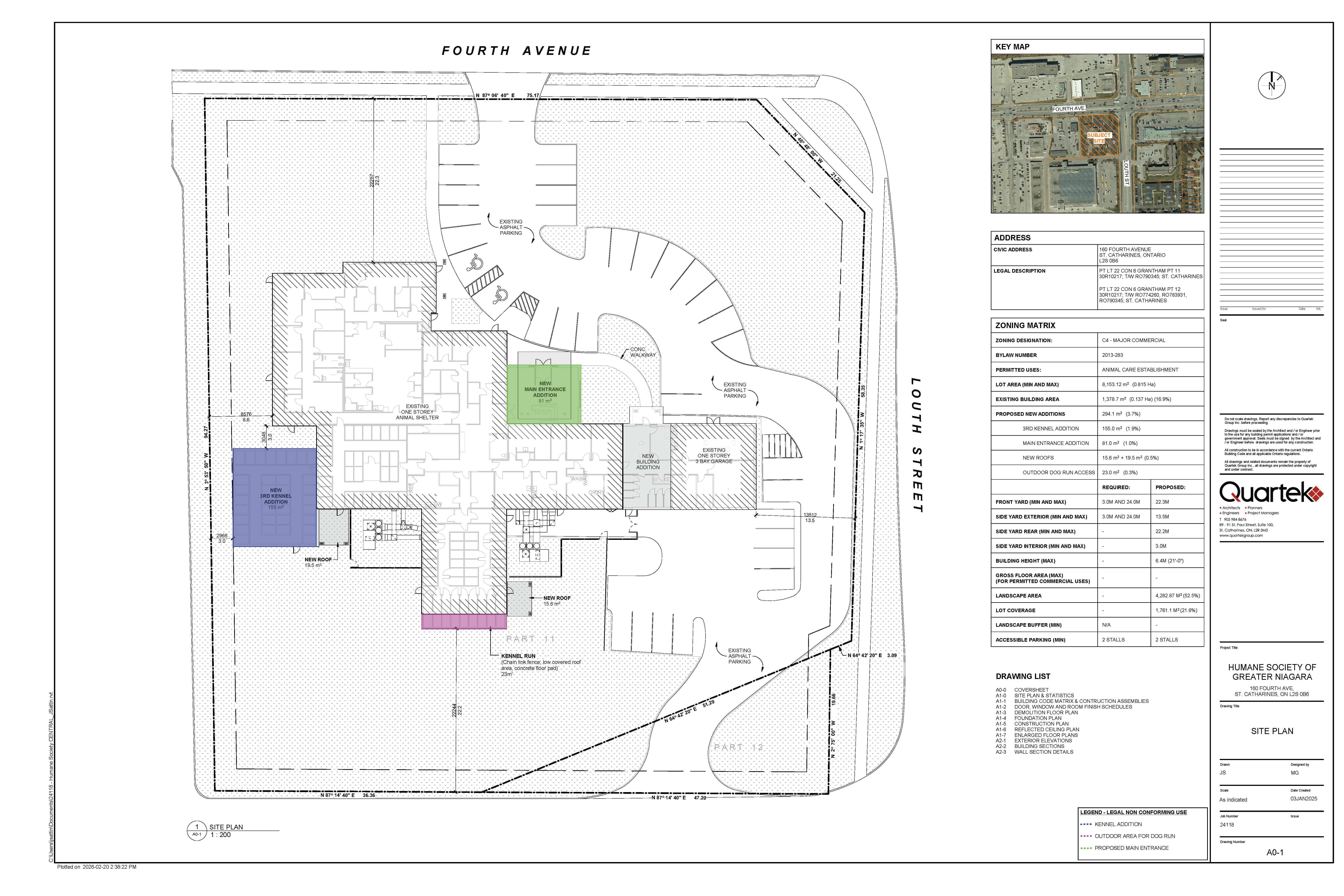
An application for a Minor Variance has been received from the Lincoln Humane Society for the property at 160 Fourth Avenue and will be heard by the Committee of Adjustment for the City of St. Catharines on April 15, 2026 at 5:00 p.m.
Southwest corner of Fourth Avenue and Louth Street
Application A-19/26 is made under Section 45 (2) (a) (i) of the Planning Act for permission to enlarge a legal non-conforming use (kennel). The Applicant proposes to enlarge the existing building by 259 m2.
If you have questions, wish to submit comments, or request a copy of the Notice of Decision, please contact:
Elaine Munro, Secretary-Treasurer, Committee of Adjustment
City Hall, P.O. Box 3012, 50 Church Street, St. Catharines, ON L2R 7C2
905-688-5601 x1715