
Proposal
The Planning and Building Services Department received an application for a Zoning By-law Amendment for lands located at 263 Pelham Road. The application was declared complete on February 26, 2026, pursuant to section 34 (10.4) of the Planning Act.
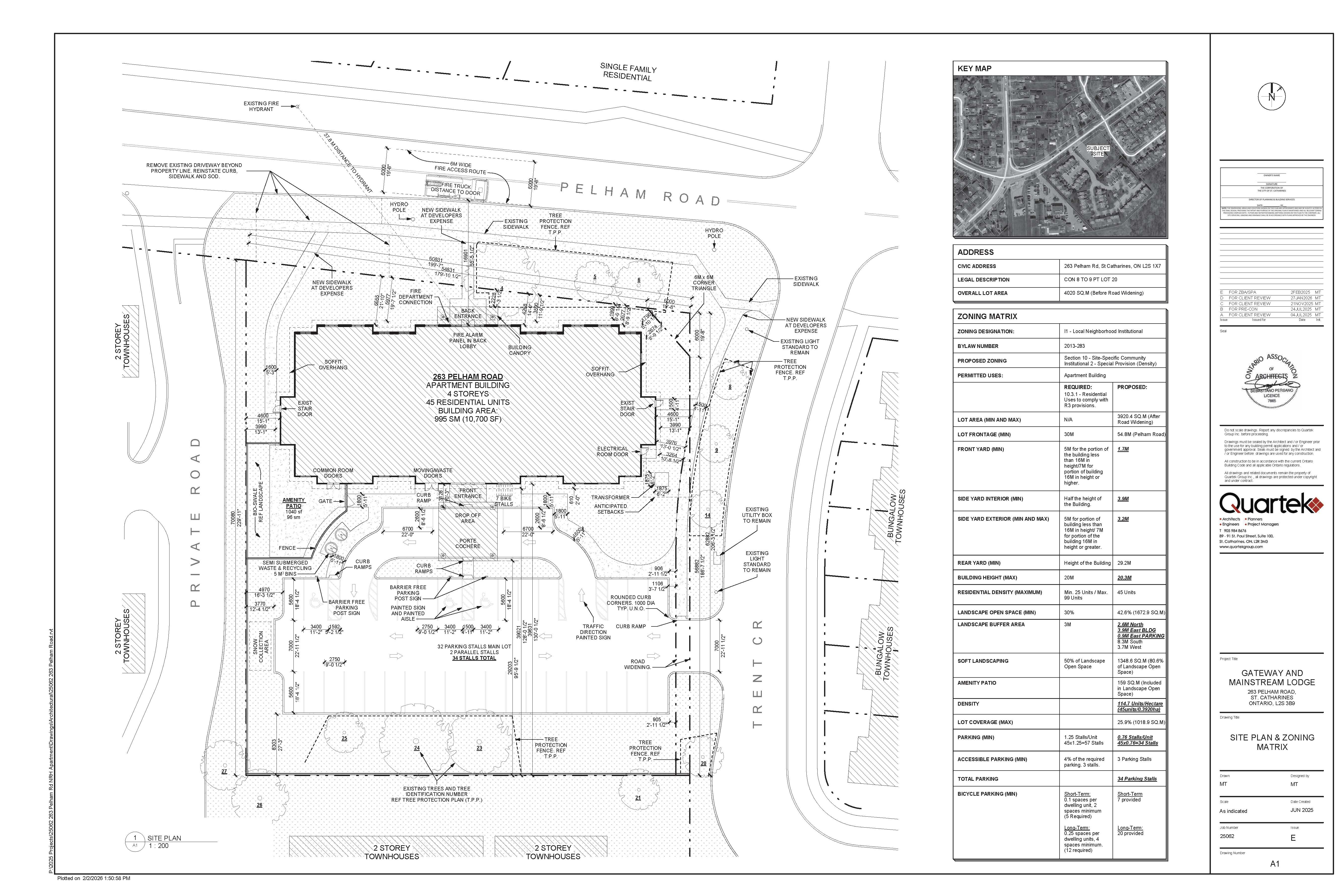
The applicant is seeking to permit a 4 storey, 45 unit apartment building.
The Zoning By-law zones the subject land Local Neighbourhood Institutional (I1). The Applicant is requesting to rezone the subject lands to Community Institutional (I2) with a Special Provision to facilitate their proposed development.
More Information
The Open House is an opportunity for public input. No decision will be made at this meeting. A Public Meeting will be held at a later date with twenty days notice.
The application materials are available for review and comment and may be found at www.stcatharines.ca/development and at the Planning and Building Services Department, City Hall, 50 Church Street.
Please contact Alexa Cooper, Senior Planner at 905-684-7241, the City’s TTY number (text telephone) 905-688-4TTY (4889), or by email (acooper@stcatharines.ca) if further information is required.
To Participate
Attend the meeting or mail/e-mail your comments/questions to Alexa Cooper, Senior Planner (acooper@stcatharines.ca) by no later than April 7, 2026. All written submissions will become part of the public record for this application.
Date: April 8, 2026
Time: 6 p.m.
Location: Burgoyne Woods Room, 3rd Floor, City Hall
50 Church Street, St. Catharines
Legal Notice
Only the registered owner of the land to which the by-law would apply, the applicant, the Minister, specified persons, and public bodies as defined in the Planning Act may appeal a decision of the municipality or by-law to the Ontario Land Tribunal.
If a person or public body would otherwise have an ability to appeal the decision of Council of the City of St. Catharines to the Ontario Land Tribunal but the person or public body does not make oral submissions at a public meeting or make written submissions to Council of the City of St Catharines before the by-law is passed, the person or public body is not entitled to appeal the decision.
If a person or public body does not make oral submissions at a public meeting, or make written submissions to Council of the City of St. Catharines before the by-law is passed, the person or public body may not be added as a party to the hearing of an appeal before the Ontario Land Tribunal unless, in the opinion of the Tribunal, there are reasonable grounds to do so.
If you wish to be notified of the decision of the Corporation of the City of St. Catharines on the proposed zoning by-law amendment, you must make a written request to:
Contact
For more information about this matter, including information about appeal rights, please contact Alexa Cooper, Senior Planner, Planning and Building Services Department at 905-684-7241, the City’s TTY number (text telephone) 905-688-4TTY (4889), or by email (acooper@stcatharines.ca).
Alexa Cooper
Planning and Building Services Department
acooper@stcatharines.ca 905.684.7241, or TTY: 905.688.4TTY (4889)

