
The Planning and Building Services Department received Official Plan and Zoning By-law Amendment applications for lands located at 101, 103, 105 and 107 Moffatt Street, 12 Arsenault Lane and Arsenault Lane right-of-way. The applications were declared complete on December 24, 2025, pursuant to sections 22 (6.1) and 34 (10.4) of the Planning Act.
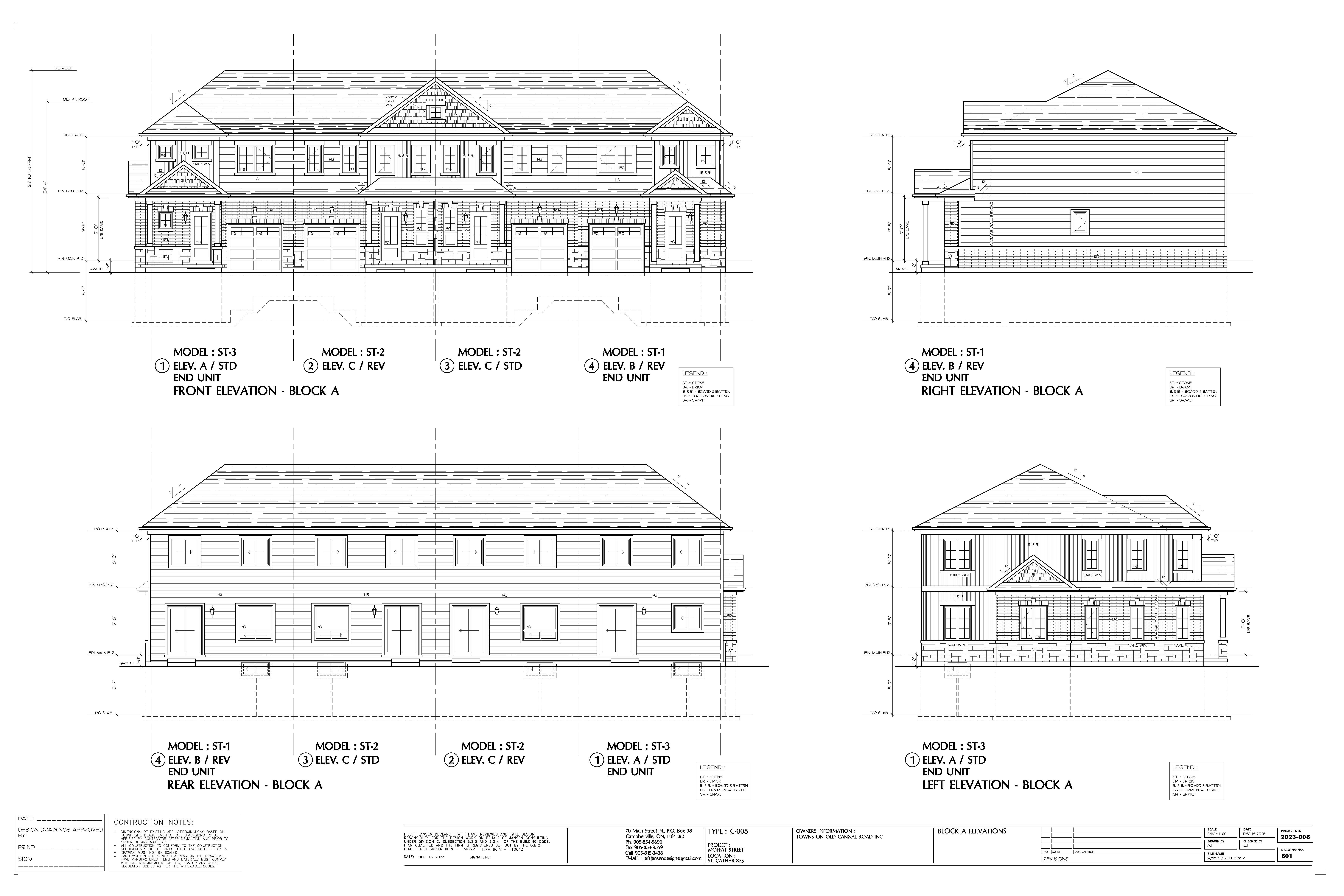
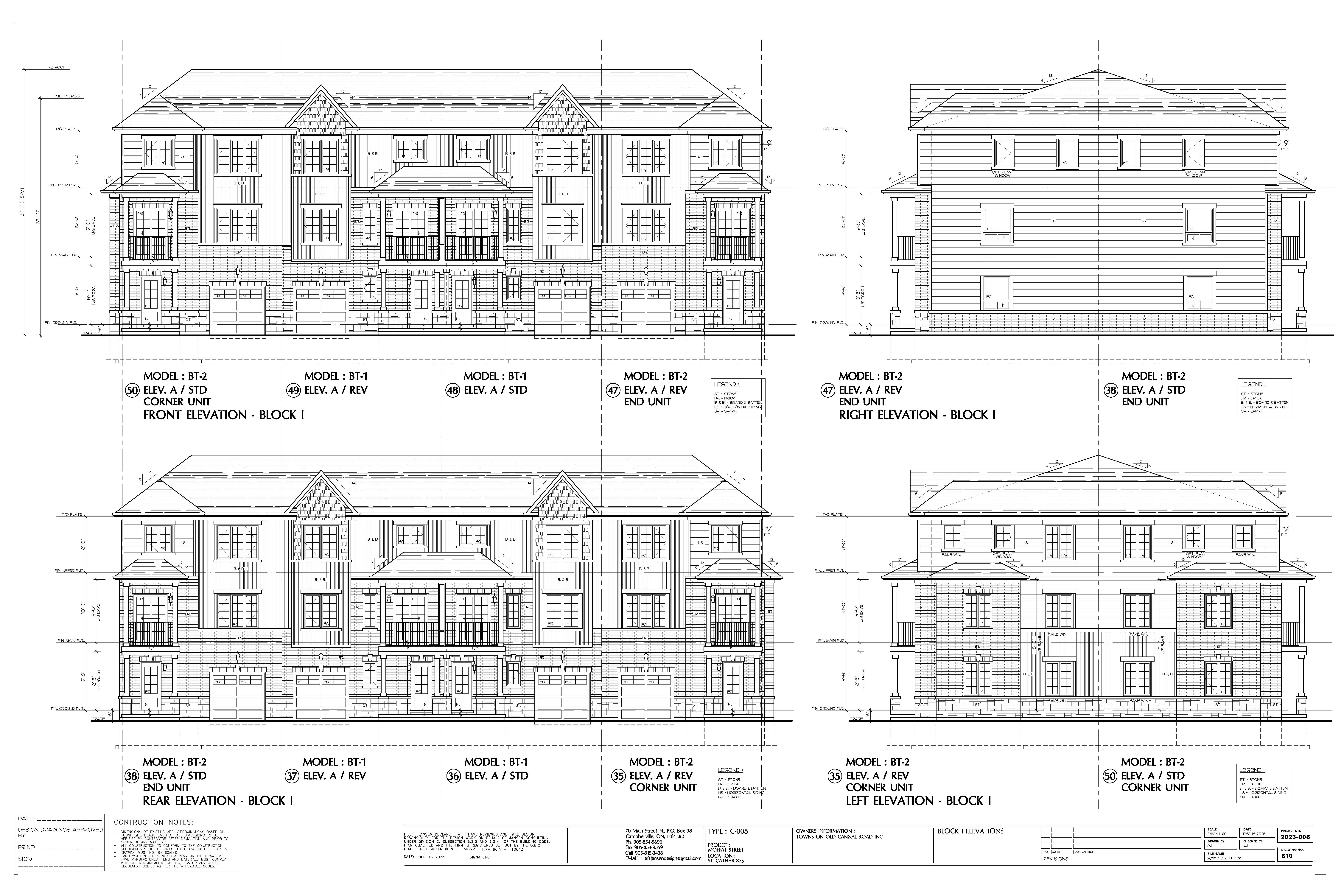
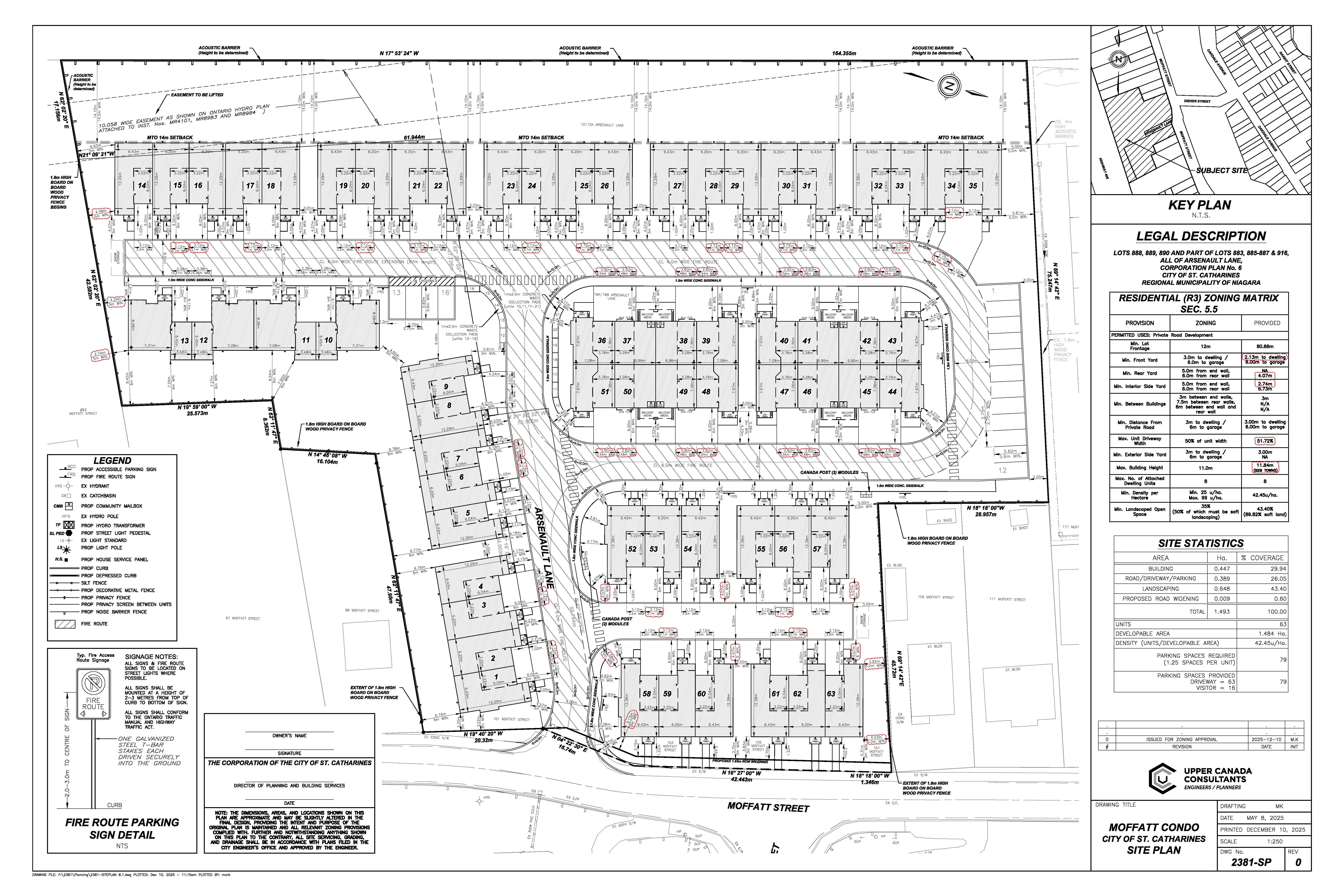
A private road development is proposed for 63 townhouse units.
The City’s Official Plan designates the subject lands as Low Density Residential. An Official Plan Amendment application has been submitted to redesignate the subject lands to Medium Density Residential to permit the proposed townhouse development.
The Zoning By-law zones the subject lands as R2 (Low Density Residential – Traditional Neighbourhood). The applicant is proposing to rezone the subject lands to R3 (Medium Density Residential) with a new Special Provision to permit the proposed development. The new Special Provision proposes to permit reduced front, interior side and rear yard setbacks and increased building height and driveway widths.
More Information
The Open House is an opportunity for public input. No decision will be made at this meeting. A Public Meeting will be held at a later date with twenty days notice.
The application materials are available for review and comment and may be found at www.stcatharines.ca/development and at the Planning and Building Services Department, City Hall, 50 Church Street. Please contact Brenda Stan, Planner at 905.680.7185, the City’s TTY number (text telephone) 905-688-4TTY (4889), or by email at bstan@stcatharines.ca if further information is required.
How To Participate
Attend the meeting, mail or email your comments/questions to Brenda Stan, Planner bstan@stcatharines.ca no later than February 9, 2026. All written submissions will become part of the public record for this application.
Date: Tuesday, February 10, 2026
Time: 6 p.m.
Location: Burgoyne Woods Room, 3rd Floor, City Hall
50 Church St., St. Catharines (Use James Street Entrance)
Legal Notice
Only the registered owner of the land to which the by-law would apply, the applicant, the Minister, specified persons, and public bodies as defined in the Planning Act may appeal a decision of the municipality or by-law to the Ontario Land Tribunal.
If a person or public body would otherwise have an ability to appeal the decision of Council of the City of St. Catharines to the Ontario Land Tribunal but the person or public body does not make oral submissions at a public meeting or make written submissions to Council of the City of St Catharines before the by-law is passed, the person or public body is not entitled to appeal the decision.
If a person or public body does not make oral submissions at a public meeting, or make written submissions to Council of the City of St. Catharines before the by-law is passed, the person or public body may not be added as a party to the hearing of an appeal before the Ontario Land Tribunal unless, in the opinion of the Tribunal, there are reasonable grounds to do so.
If you wish to be notified of the decision of the Corporation of the City of St. Catharines on the proposed official plan and zoning by-law amendment, you must make a written request to:
Contact
For more information about this matter, including information about appeal rights, please contact Brenda Stan, Planner, Planning and Building Services Department at 905.680.7185, the City’s TTY number (text telephone) 905.688.4TTY (4889), or by email (bstan@stcatharines.ca).
Brenda Stan
Planning and Building Services Department
bstan@stcatharines.ca 905.680.7185 or 905-688-4TTY (4889)


