Skip to Content
Make a PaymentAccessibilityCareersOnline ApplicationsReport an Issue
mySTC

St. Catharines Logo St. Catharines Logo

St. Catharines Logo
  • Applications, Licences and Permits
    Toggle Section Applications, Licences and Permits Menu
    • Building Permits
      Toggle Section Building Permits Menu
      • Applying for a Building Permit
      • Do I need a Building Permit
      • Inspections
      • Issued Permits
    • Burn Permits
    • Business Licences
    • Community and Cultural Displays Program
    • Development Applications
    • Dog Licences
    • Food Trucks and Mobile Vending
    • Heritage Permits
    • Liquor Licences
    • Lottery and Gaming Licences
    • Marriage Licences
      Toggle Section Marriage Licences Menu
      • Civil Marriage Ceremonies
    • Short-term Rental Licensing
    • Signs
  • Arts, Culture and Events
    Toggle Section Arts, Culture and Events Menu
    • Arts and Culture Newsletters
    • Arts Awards
    • Attractions
      Toggle Section Attractions Menu
      • Centennial Gardens Totem Pole
      • Ontario Lacrosse Hall of Fame and Museum
      • Sports Hall of Fame
      • St. Catharines Museum and Welland Canals Centre
    • Awards Programs
      Toggle Section Awards Programs Menu
      • Arts Awards
      • Trillium Awards
      • Volunteer Awards
    • Cultural Investment Program
      Toggle Section Cultural Investment Program Menu
      • SCCIP Development Programs
      • SCCIP Sustaining Programs
    • Farmers Market
      Toggle Section Farmers Market Menu
      • Farmers Market Events
      • Farmers Market Field Trips
      • Market Vendors
    • Festivals and Special Events
      Toggle Section Festivals and Special Events Menu
      • Culture Days
      • Farmers Market Events
      • Museum Events
      • News and Upcoming Events
      • Fire Special Event Requirements
      • Summer Concert Series
    • FirstOntario Performing Arts Centre
    • History and Heritage
      Toggle Section History and Heritage Menu
      • Heritage Sites
        Toggle Section Heritage Sites Menu
        • British Methodist Episcopal Church, Salem Chapel
        • Former Lincoln County Courthouse
        • Former Merritton Town Hall
        • Heritage Tours
        • Lakeside Park Carousel
        • Mayholme Genealogical and Historical Research Centre
        • Morningstar Mill
        • Port Dalhousie Heritage District
        • Port Dalhousie Inner Range Lighthouse
        • Power Glen Heritage District
        • Queen Street Heritage District
        • The Underground Railroad
        • Yates Street Heritage District
      • History of the City
    • Libraries
    • Market Square
    • Public Art
      Toggle Section Public Art Menu
      • Art Exhibits
      • Bogart Park Public Art Project
      • Calls to Artists
      • Carlisle Street Public Art Project
      • Civic Art Collection
      • Fallen Workers Memorial
      • Monuments and Memorials
      • Pull Port Dalhousie
    • Richard Pierpoint Park
      Toggle Section Richard Pierpoint Park Menu
      • Centennial Gardens Partnership Fund
      • Centennial Totem Pole
    • Tourism
    • St. Catharines Museum and Welland Canals Centre
      Toggle Section St. Catharines Museum and Welland Canals Centre Menu
      • Collections
        Toggle Section Collections Menu
        • eMuseum Online Collection
      • Exhibits
        Toggle Section Exhibits Menu
        • History InSite
        • Permanent Exhibits
        • Temporary Exhibits
      • Memberships
      • Museum Blog
      • Museum Events
        Toggle Section Museum Events Menu
        • Museum Calendar
      • Programs
        Toggle Section Programs Menu
        • Group Experiences
        • Guided Spirit Walks
        • Public Programs
        • STC StoryLab
        • Virtual Programs
      • Visiting Us
        Toggle Section Visiting Us Menu
        • Gift Shop
        • Ontario Lacrosse Hall of Fame and Museum
      • Volunteer Opportunities
  • Building and Renovating
    Toggle Section Building and Renovating Menu
    • Building Permits
      Toggle Section Building Permits Menu
      • Applying for a Building Permit
      • Do I need a Building Permit
      • Inspections
      • Issued Permits
      • Pre-Approved Detached Accessory Dwelling Unit (ADU) Designs
    • Heritage Properties
      Toggle Section Heritage Properties Menu
      • Heritage Designated Property Grant
      • History and Heritage
      • Heritage Properties and Conservation Districts
      • Heritage Permits
    • Housing Accelerator Funding
    • Inspections
      Toggle Section Inspections Menu
      • Building Inspections
      • Sewer Inspections
    • Signs
    • Zoning
  • Business and Economic Development
    Toggle Section Business and Economic Development Menu
    • Business Licences
    • Commercial and Charity Barbecues and Smokers
    • Community Profile
      Toggle Section Community Profile Menu
      • Demographics
      • Industries
      • Labour
    • Economic Development
    • Film Productions
    • Liquor Licences
    • Short-term Rental Licensing
    • Signs
    • Starting a Business
    • Vendor and purchasing opportunities
  • By-laws and Animal Services
    Toggle Section By-laws and Animal Services Menu
    • Animal Services and Control
      Toggle Section Animal Services and Control Menu
      • Coyotes
      • Dog Licences
    • By-law Directory
    • By-law Enforcement
    • Commonly Requested By-laws
      Toggle Section Commonly Requested By-laws Menu
      • Backyard Fires and Chimeneas
      • Boulevard By-law
      • Graffiti By-Law
      • Noise By-law
      • Public Space Use By-law
      • Park By-law
      • Parking By-law
      • Pool Enclosure and Fence By-Law
      • Property Standards By-law
      • Short-term Rental Licensing
      • Sign By-law
      • Snow Removal By-law
      • Vacant Building Registry By-law
      • Vital Services By-law
      • Waste Disposal By-law
      • Weeds and Tall Grass By-Law
      • Zoning
    • Coyotes
    • Report an Issue
  • Community Services and Supports
    Toggle Section Community Services and Supports Menu
    • Accessibility
    • Cemeteries
    • Commissioning of Documents
    • Disability Assistance Programs
      Toggle Section Disability Assistance Programs Menu
      • Boulevard Grass Cutting Service
      • Payment Extension Program
      • Property Tax Deferrals for Homeowners
      • Snow Removal Program
    • Diversity, Equity and Inclusion
      Toggle Section Diversity, Equity and Inclusion Menu
      • 2SLGBTQI+ Advisory Committee
      • Accessibility
      • Accessibility Advisory Committee
      • Anti-Racism Advisory Committee
      • Disability Assistance Programs
      • Equity and Inclusion Advisory Committee
      • Housing and Homelessness
      • Indigenous Relations
      • Older Adults Advisory Committee
      • Older Adult and Youth Programming
      • Senior Assistance Programs
    • Extreme Temperatures
    • Fee Assistance in Recreation
    • Housing and Homelessness
    • Organization Assistance Programs
      Toggle Section Organization Assistance Programs Menu
      • Ethno-Cultural Organization Assistance Programs
      • Non-profit Property Tax Rebate Program
    • Property Tax Deferrals for Homeowners
    • Senior Assistance Programs
      Toggle Section Senior Assistance Programs Menu
      • Boulevard Grass Cutting Service
      • Payment Extension Program
      • Property Tax Deferrals for Homeowners
      • Snow Removal Program
      • Water and Wastewater Senior Credit Program
  • Council and Administration
    Toggle Section Council and Administration Menu
    • Accountability and Transparency
    • Bids and Tenders
    • Committees, Boards and Task Forces
      Toggle Section Committees, Boards and Task Forces Menu
      • Advisory Committees and Task Forces
        Toggle Section Advisory Committees and Task Forces Menu
        • 2029 Historic Welland Canals Task Force
        • 2SLGBTQI+ Advisory Committee
        • Accessibility Advisory Committee
        • Anti-Racism Advisory Committee
        • Arts and Culture Advisory Committee
        • Citizen Task Force to Review Remuneration for Council, Boards, Agencies and Commissions
        • Clean City Task Force
        • Committee of Adjustment
        • Community Improvement Plan Review Task Force
        • Development Studies Task Force
        • Environmental Stewardship Advisory Committee
        • Diversity Equity and Inclusion Advisory Committee
        • Downtown Heritage Conservation District Task Force
        • Fallen Firefighters Memorial Task Force
        • Heritage Advisory Committee
        • Neil Peart Commemorative Task Force
        • Older Adults Advisory Committee
        • Ontario Street Corridor Secondary Plan Neighbourhood Advisory Committee
        • Property Standards Appeal Committee
        • Recreation Master Plan Advisory Committee
        • Special Event Fee Reduction Task Force
        • St. Catharines Museum Advisory Committee
        • Surplus Lands Development Task Force
      • Boards and Commissions
      • Budget Standing Committee
      • Meeting Calendar
    • Budget and Finances
      Toggle Section Budget and Finances Menu
      • Asset Management
      • Budgets and Financial Statements
      • Rates and Fees
    • Careers
      Toggle Section Careers Menu
      • Employee Resources
    • Citizens First
      Toggle Section Citizens First Menu
      • Say the Magic Word Contest
    • City Hall
      Toggle Section City Hall Menu
      • Tributes
    • Contact Us
    • Departments
    • Elections
      Toggle Section Elections Menu
      • 2026 Municipal Election
        Toggle Section 2026 Municipal Election Menu
        • 2026 Voters List Information
        • Election Resources and Forms
        • Election Ward Map
      • 2025 Port Dalhousie By-Election
        Toggle Section 2025 Port Dalhousie By-Election Menu
        • 2025 By-Election Certified Candidates
        • 2025 By-Election Financial Statements
        • 2025 By-Election Results
        • Campaign Finances
        • Key Election Dates
        • Registered Third Party Advertisers
      • 2022 Municipal Election
        Toggle Section 2022 Municipal Election Menu
        • 2022 Election Results
        • Financial Statements
        • Campaign Finances
        • Joint Niagara Compliance Audit Committee
    • Mayor and Council
      Toggle Section Mayor and Council Menu
      • Agendas and Minutes
      • Council Meeting Calendar
      • Mayor’s Office
      • Presenting to Council
      • townhallSTC: Bringing Government To Your Ward's Doorstep
      • Upper-Tier Government Representatives
      • Ward Councillors
      • Ward Map
    • Niagara Open Data
    • Official Emblems and Symbols
    • Plans, Reports and Studies
      Toggle Section Plans, Reports and Studies Menu
      • Active Transportation Master Plan
      • Climate Adaptation Plan
      • Culture Plan
      • Projects and Studies
      • Recreation Facility and Programming Master Plan
      • St. Catharines Strategic Plan
      • Transportation Master Plan
    • Policies and Procedures
      Toggle Section Policies and Procedures Menu
      • Disclaimer
      • Privacy Policy
      • Rzone Policy
    • Records, Access and Privacy
    • Submitting a Claim
    • Surplus Auctions
    • Twin City
    • Upper-Tier Government Representatives
  • Home, Property and Environment
    Toggle Section Home, Property and Environment Menu
    • Backyard Fires and Chimeneas
    • Basement Flooding
    • Call Before You Dig
    • Environment
      Toggle Section Environment Menu
      • Bee City St. Catharines
      • Climate Adaptation Plan
      • Climate Change
      • Water Quality
    • Frozen Water Lines
    • Garbage and Recycling
    • Gardening
      Toggle Section Gardening Menu
      • Boulevard Gardens
      • Community Gardens
      • Policy for Community Gardens on City Land
    • Hydro Utilities
    • Property Taxes
    • Rain Barrel Sales
    • Residential Rat Control
    • Short-term Rentals
    • Trees
      Toggle Section Trees Menu
      • Boulevard Trees
      • Invasive Species
      • Oak Wilt
      • Plum Pox Virus
      • Tree and Stump Removals
      • Tree Giveaway
    • Water, Utilities and Services
  • Fire and Emergency Services
    Toggle Section Fire and Emergency Services Menu
    • Emergency Preparedness
      Toggle Section Emergency Preparedness Menu
      • Emergency Preparedness Guide
      • Know the Hazards
    • Fire Services
      Toggle Section Fire Services Menu
      • Backyard Fires and Chimeneas
      • Barbecues and Smokers
      • Burn Permits
      • Commercial and Charity Barbecues and Smokers
      • Fire Bans
      • Fire Prevention Office
        Toggle Section Fire Prevention Office Menu
        • Fire Prevention Month
      • Fire Safety
        Toggle Section Fire Safety Menu
        • Carbon Monoxide Awareness
        • Fire Extinguishers
        • Smoke Alarms
      • Report an Issue
    • Hospitals and Healthcare
    • Report an Issue
    • Special Event Planning Guidelines
  • News, Notices and Updates
    Toggle Section News, Notices and Updates Menu
    • Arts and Culture Newsletters
    • City Projects Construction Map
    • Community Events Calendar
    • Garden City Current Newsletter
    • mySTC Portal
      Toggle Section mySTC Portal Menu
      • mySTC Portal Frequently Asked Questions
    • News Releases
    • Projects and Studies
      Toggle Section Projects and Studies Menu
      • Energy Management Plan
      • Fairview Park Community Vision
      • Future of 282-285 Ontario Street
      • GO Transit Station Secondary Plan
      • Grantham Rail Trail Design-Build - Trail Improvements Project
      • Hampstead Place Reconstruction
      • Labyrinth at Fairview Park
      • Lake Street Improvements
      • Lake Street Reconstruction
      • Neil Peart Memorial
      • Niagara 2041
      • Ontario Street Corridor Secondary Plan Study
      • Port Dalhousie Secondary Plan Study
      • Ridley Road EA and Reconstruction
      • Smoke Testing of the Sanitary Sewer System
      • St. David's Road Townline Road Reconstruction
      • Sunset Beach Community Vision
      • Water Master Servicing Study
    • Public Notices
    • Road and Traffic Notices
    • Social Media
    • Subscribe
  • Planning and Development
    Toggle Section Planning and Development Menu
    • Bill 23 - More Homes Built Faster Act
    • Committee of Adjustment
    • Community Benefits Charges
    • Community Improvement Plan
    • Condominiums
    • Development Agreements
    • Development Applications
    • Development Charges
    • Heritage Properties
      Toggle Section Heritage Properties Menu
      • Heritage Designated Property Grant
      • History and Heritage
      • Heritage Inventory and Conservation Districts
      • Heritage Permits
    • Official Plan
      Toggle Section Official Plan Menu
      • Official Plan Amendments
    • Servicing Agreements
    • Site Plan Control
    • Subdivisions
    • Urban Design
    • Zoning
      Toggle Section Zoning Menu
      • Zoning By-law Amendments
      • Zoning Map
  • Property Taxes
    Toggle Section Property Taxes Menu
    • Assessments
    • Budget and Finances
    • Changing Your Address
    • Paperless e-bills
    • Property Tax Calculator
    • Property Tax Deferrals for Homeowners
    • Tax Certificates
    • Tax Payments and Rates
    • Tax Receipt Requests
    • Tax Sales
    • Supplementary Tax Bills
  • Recreation and Leisure
    Toggle Section Recreation and Leisure Menu
    • ActiveSTC Program Registration
    • Arenas and Ice Rinks
      Toggle Section Arenas and Ice Rinks Menu
      • Arena and Ice Rentals
      • Community Outdoor Ice Rinks
      • Public Skating and Arena Programs
        Toggle Section Public Skating and Arena Programs Menu
        • Preschool Stick and Puck
        • Public Skating
        • Shinny Hockey (18+ and 45+)
        • Ticket Ice Figure Skating
        • 65 + Pond Hockey
    • Beaches
      Toggle Section Beaches Menu
      • Beach Parking
      • Sunset Beach Renovation Project
    • Donations and Memorials
    • Golf Course
    • Happy Rolph's Animal Farm
    • Leash-free Dog Parks
    • Meridian Centre Community Use Program
    • Older Adult Centres
      Toggle Section Older Adult Centres Menu
      • Dunlop Drive Older Adult Centre
      • Older Adult Centre Program Calendar
        Toggle Section Older Adult Centre Program Calendar Menu
        • Older Adult Centre Events
      • Rent an Older Adult Centre
      • West St. Catharines Older Adult Centre
    • Outdoor Activities
      Toggle Section Outdoor Activities Menu
      • Boat Launches
      • Hiking, Walking and Running
    • Parks, Playing Fields, Courts and Green Spaces
    • Pickleball Courts
    • Pools and Splash Pads
      Toggle Section Pools and Splash Pads Menu
      • Aquatics and Ice Safety
      • St. Catharines Kiwanis Aquatics Centre
        Toggle Section St. Catharines Kiwanis Aquatics Centre Menu
        • Aquatic Deals and Events
        • Aquatic Fitness Schedule
        • Book a Program Room
        • School Instructional Swim Program
        • Swimming Schedule
      • Outdoor Pools
      • Pool Rentals
      • Splash Pads
      • Swimming Lessons
    • Recreation Programs
      Toggle Section Recreation Programs Menu
      • Drop-in Programs
      • Fee Assistance in Recreation
      • ActiveSTC registration
      • School Instructional Swim Program
      • Swimming Lessons
    • Rent Facilities, Fields and Parks
      Toggle Section Rent Facilities, Fields and Parks Menu
      • Kiwanis Field
      • Pool Rentals
    • Richard Pierpont Park
    • Rzone Policy
    • St. Catharines Museum and Welland Canals Centre
    • Tennis Courts
    • Trails
    • Volunteering
      Toggle Section Volunteering Menu
      • Friends of Malcolmson Eco-Park
      • Friends of Morningstar Mill
      • Friends of the Carousel
      • Port Dalhousie Beautification and Works Committee
  • Roads, Parking and Traffic
    Toggle Section Roads, Parking and Traffic Menu
    • Adopt a Street
    • City Projects Construction Map
    • Parking
      Toggle Section Parking Menu
      • Beach Parking
      • Downtown Parking Map
      • Electric Vehicle Charging Stations
      • Parking in Port Dalhousie
      • Parking Permits
        Toggle Section Parking Permits Menu
        • Accessible Meter Parking Permit
        • Accessible Parking Permits
        • Commercial Parking Permits
        • Monthly Parking Permits
        • Residential Parking Permits
        • Veteran's Parking Permits
      • Pay a Parking Ticket
      • Smart Phone Parking Payments
      • Special Event Parking
      • Winter Parking
    • Report an Issue
    • Road and Traffic Notices
    • Road Permits and Applications
      Toggle Section Road Permits and Applications Menu
      • Oversize and Overweight Vehicle Permits
      • Street Banner Permits
    • Snow Removal
      Toggle Section Snow Removal Menu
      • Sidewalk Snow Removal
      • Snow Removal Process
      • Winter Parking
    • Traffic and Road Safety
      Toggle Section Traffic and Road Safety Menu
      • Pedestrian Crossovers
      • Road Maintenance
      • School Crossing Guards
      • School Zone Safety
      • Street Cleaning
      • Traffic Signals, Utility Poles and Street Lights
  • St. Catharines Museum
  • Water Utilities and Services
    Toggle Section Water Utilities and Services Menu
    • Backflow Prevention
    • Basement Flooding
    • Fire Hydrants
    • Frozen Water Lines
    • Paying Your Water Bill
      Toggle Section Paying Your Water Bill Menu
      • Open or Close an Account
      • Paperless e-bills
      • Understanding Your Water Bill
      • Water and Wastewater Senior Credit Program
      • Water Meters
        Toggle Section Water Meters Menu
        • Submit Your Meter Reading
        • Water Meter Replacement
      • Water Wastewater Calculator
    • Rain Barrel Sales
    • Report an Issue
    • Sewers
    • Water Certificates
    • Water Conservation
    • Water Quality
    • Water Wastewater Calculator
Contact Us

Downtown St. Catharines at sunset

  • Facebook
  • Twitter
  • LinkedIn
  • Email

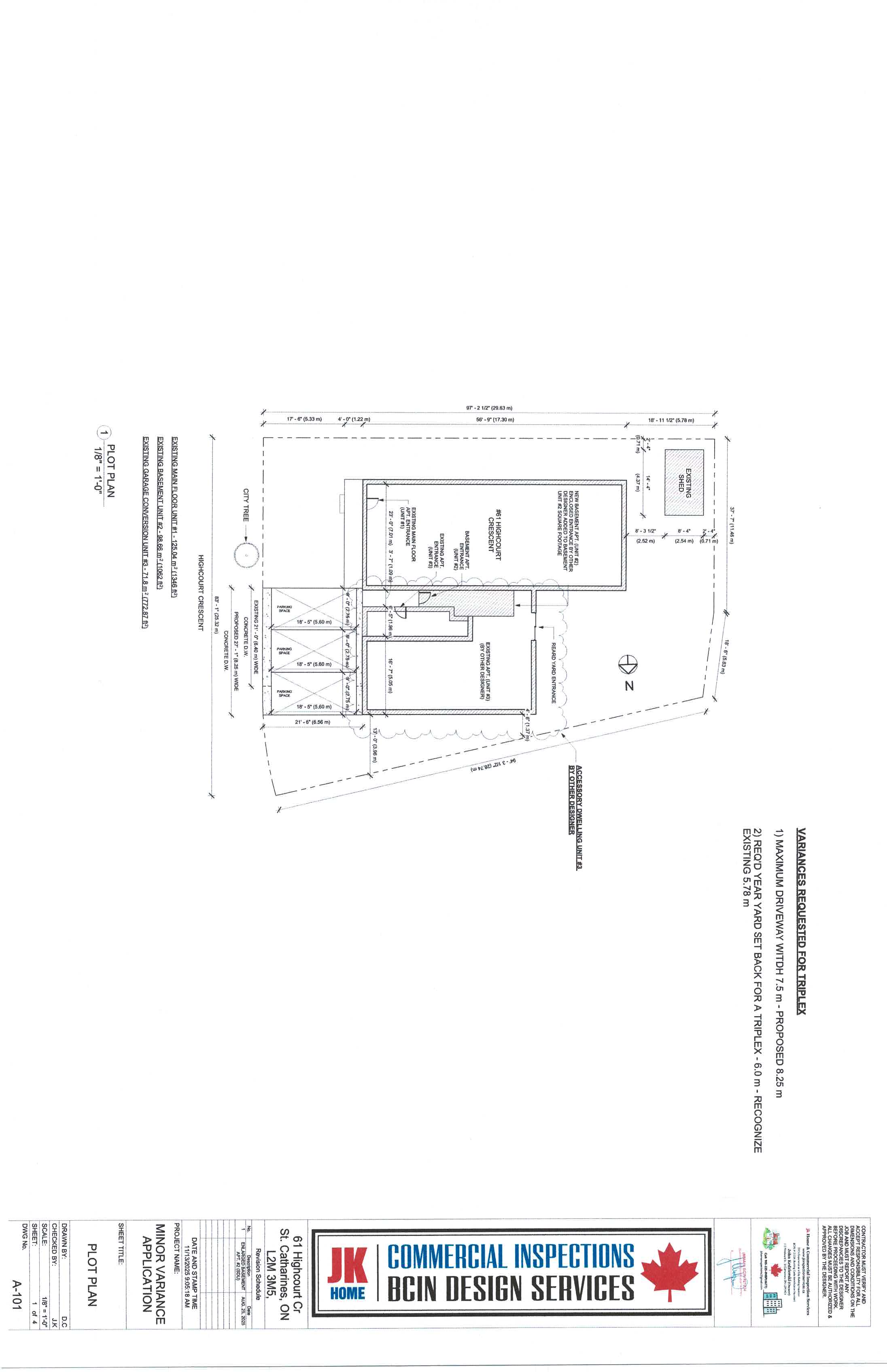
Notice of Hearing: 61 Highcourt Crescent

Back to Search

An application for a Minor Variance has been received from Debra MacAskill & Joseph Khan for the property at 61 Highcourt Crescent and will be heard by the Committee of Adjustment for the City of St. Catharines on December 10, 2025 at 5:00 p.m.

Application Location  

  • 61 Highcourt Crescent
  • West side of Highcourt Crescent, south of Densgrove Drive
  • PLAN 588 LOT 62

Minor Variance Application details (A-65/25) 

Application A-65/25 seeks relief from the City of St Catharines Zoning By-law 2013-283, as amended, for the following variances for a proposed triplex dwelling:

  1. A reduction of the minimum rear yard setback from 7.5 m to 5.78 m.
  2. An increase of the maximum parking area width from 7.5m to 8.25m.

View Site Plan

Hearing Participation 

  • Please submit any comments in writing to the Secretary-Treasurer by 4 p.m. on December 3, 2025, or you can appear in person and make a verbal presentation to the Committee. Please note that all Committee of Adjustment Hearings will be held in-person at City Hall on the 3rd floor in Council Chambers. City Hall is located at 50 Church Street, St. Catharines, Ontario (Please use the James Street entrance).
  • All Hearings will be live-streamed and can be viewed online on the City of St. Catharines' YouTube account https://www.youtube.com/c/CityStCatharines 
  • An appeal to the Ontario Land Tribunal (OLT) may be dismissed if no written or verbal submissions were made at the hearing before the Committee gives or refuses to give approval to an application. Pursuant to the More Homes Built Faster Act, Appeals may be submitted by the Applicant, the Minister or a specified person or public body that has an interest in the matter.

If you have questions, wish to submit comments, or request a copy of the Notice of Decision, please contact:

Elaine Munro, Secretary-Treasurer, Committee of Adjustment

City Hall, P.O. Box 3012, 50 Church Street, St. Catharines, ON L2R 7C2

905-688-5601 x1715

cofa@stcatharines.ca

For more information on how to participate or make a submission via mail, phone or email, please visit our Committee of Adjustment Page.

Subscribe

Contact Us

Subscribe To Page Updates

St. Catharines footer logo

Open new window to view our Facebook page Open new window to view our Instagram page Open new window to view our X page Open new window to view our YouTube page Open new window to view our LinkedIn page

Copyright © 2023 The Corporation of the City of St. Catharines, 50 Church St., PO Box 3012, St. Catharines ON L2R 7C2,
Email: CitizensFirst@stcatharines.ca, Tel: 905.688.5600, TTY: Type 711 for the operator

AccessibilityCareersReport an IssueContact UsWebsite FeedbackPrivacy PolicyDisclaimerSitemap
By GHD Digital

Browser Compatibility Notification

It appears you are trying to access this site using an outdated browser. As a result, parts of the site may not function properly for you. We recommend updating your browser to its most recent version at your earliest convenience.